Verkocht:Gouman-Akker 19, 2994 BC Barendrecht - Foto
Verkocht
+48

Gouman-Akker 19 2994 BC Barendrecht

  • Woonhuis
  • 7 kamers
  • 5 slaapkamers
  • 1 badkamers
  • Bouwjaar 2006
  • 352 m² perceeloppervlakte
  • 206 m² gebruiksoppervlakte
  • A Energielabel A

Beschrijving

Riante twee-onder-een-kapwoning gelegen in de geliefde- en kindvriendelijke wijk Vrijheidsakker. De woning bevindt zich in een rustige en groene omgeving en ligt centraal ten opzichte van het openbaar vervoer (tram en bus op loopafstand), scholen, sportgelegenheden, kinderopvang, winkels, en uitvalswegen (A15 en A29).
Deze goed onderhouden, zeer ruime woning met 4 slaapkamers beschikt over: een moderne open keuken, nieuwe badkamer, kantoorruimte, bijkeuken, grote woonkamer, zonnige achtertuin gelegen op het zuiden, energielabel A en een ruime garage. De woning heeft twee parkeerplaatsen op eigen terrein. De buitenzijde van de woning is in oktober 2025 geschilderd.

Indeling

BEGANE GROND

Bij binnenkomst in de hal is er aan de linkerzijde direct toegang tot de kantoorruimte (ca. 10 m2). In de hal bevindt zich ook de meterkast en het toilet alsmede de trapopgang naar de eerste verdieping. De toiletruimte is geheel betegeld en voorzien van een hangend closet en een fonteintje. De woonkamer op de begane grond is ingedeeld in een zit- en eetgedeelte waarbij de vele ramen voor een aangename natuurlijke lichtinval zorgen. In de zitkamer (ca. 37 m2) zorgt een bio ethanol haard voor extra sfeer en warmte. De zitkamer is van de eetkamer (ca. 27 m2) gescheiden door stijlvolle zwarte stalen deuren met helder glas, wat zorgt voor een luxe uitstraling. De moderne (hoogglans) open keuken is voorzien van een 4-pits keramische kookplaat, combi-oven, vaatwasser, koel/vriescombinatie, afzuigkap en veel kast- en werkruimte. Openslaande deuren geven toegang tot de achtertuin (ca. 133 m2), die gelegen is op het zuiden. De verzorgde ruime tuin geeft veel privacy. De achtertuin is ook te bereiken via een toegangspoort.

Verder is er op de begane grond een bijkeuken, een trapkast voor extra opbergruimte en de garage. De bijkeuken (ca.10 m2) is vanuit de eetkamer te bereiken via een houten loftdeur. In de bijkeuken is een grote kast met schuifdeuren aanwezig die garant staat voor voldoende bergruimte. Hier bevindt zich tevens een fontijntje en aansluitingen voor wasmachine en droger. Hier is ook plaats voor een tweede koel-vries-combinatie. Vanuit de bijkeuken stapt u in de ruime garage via een brandwerende deur. De garage is geisoleerd en voorzien van een elektrische garagedeur.
De begane grond is voorzien van een plavuizen vloer met vloerverwarming.

EERSTE VERDIEPING

Op de eerste verdieping zijn twee ruime slaapkamers, de badkamer en de trap naar de tweede verdieping. De moderne badkamer, in 2024 geheel vernieuwd, is geheel betegeld en voorzien van vloerverwarming, een douche, design handdoek radiator, toilet, spiegel en een wastafelmeubel.

Slaapkamer 1: (ca. 23 m2) is de zeer ruime hoofdslaapkamer gelegen aan de achterzijde van de woning. Deze slaapkamer is ook voorzien van een inloopkast. Voorheen waren dit twee slaapkamers.

Slaapkamer 2: (ca. 10 m2) is gelegen aan de voorzijde van de woning.
De slaapkamers zijn voorzien van een nette laminaatvloer (2025).

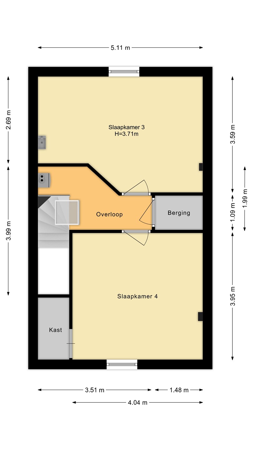
TWEEDE VERDIEPING

Op de tweede verdieping zijn twee zeer ruime slaapkamers en een extra berging.

Slaapkamer 3: (ca. 15 m2) is gelegen aan de achterzijde van de woning.
Slaapkamer 4: (ca. 16 m2) is gelegen aan de voorzijde van de woning.
De slaapkamers zijn voorzien van rolluiken en een laminaatvloer.
Op de tweede verdieping bevindt zich ook de HR-ketel.

BIJZONDERHEDEN

- Woonoppervlakte 206 m2 (volgens NEN2580 meetrapport);
- Perceeloppervlak 352 m2
- Bouwjaar 2006;
- Energielabel A;
- Volledig geïsoleerd;
- Geheel dubbelglas (HR++);
- Hardhouten kozijnen (2025 geschilderd);
- HR-ketel (2024, eigendom);
- Vloerverwarming begane grond + badkamer;
- Glasvezel (KPN) aanwezig;
- Geisoleerde garage (ca. 20 m2);
- Achtertuin (ca. 133 m2) is gelegen op het zuiden;
- Parkeren op eigen terrein;
- Eigen grond;
- Oplevering in overleg;

U bent van harte welkom om de woning te komen bekijken. Dat is natuurlijk ook buiten kantooruren mogelijk. Zoals u van ons gewend bent…
Zoeken… Vinden… Wonen.

Deze informatie is met zorg samengesteld, maar voor de juistheid ervan kan door Mansion Makelaardij geen aansprakelijkheid worden aanvaard, noch kan aan de vermelde gegevens enig recht worden ontleend. Nadrukkelijk is vermeld dat deze informatieverstrekking niet als een aanbieding of offerte mag worden beschouwd.

Koopovereenkomst
Van een juridische overeenkomst is pas sprake als de koopovereenkomst door zowel verkoper als koper is ondertekend.

Woonoppervlakte
De Meetinstructie is gebaseerd op de NEN2580. De Meetinstructie is bedoeld om een meer eenduidige manier van meten toe te passen voor het geven van een indicatie van de gebruiksoppervlakte. De Meetinstructie sluit verschillen in meetuitkomsten niet volledig uit, door bijvoorbeeld interpretatieverschillen, afrondingen of beperkingen bij het uitvoeren van de meting. Indien de exacte maten voor een koper van cruciaal belang zijn, adviseren wij deze zelf na te meten. De (kandidaat)koper(s) zullen, indien gewenst, daartoe in de gelegenheid gesteld worden op een passend moment teneinde teleurstellingen en schade te voorkomen.

Kaart

Kenmerken

Overdracht

Referentienummer
592
Vraagprijs
€ 899.500,- k.k.
Status
Verkocht
Aanvaarding
In overleg
Aangeboden sinds
Vrijdag 31 oktober 2025
Laatste wijziging
Zaterdag 17 januari 2026

Bouw

Type object
Woonhuis, eengezinswoning, twee onder een kap woning
Soort bouw
Bestaande bouw
Bouwperiode
2006
Isolatievormen
HR-glas
Volledig geïsoleerd

Oppervlaktes en inhoud

Perceeloppervlakte
352 m²
Woonoppervlakte
206 m²
Inhoud
813 m³
Oppervlakte overige inpandige ruimten
20 m²

Indeling

Aantal bouwlagen
3
Aantal kamers
7 (waarvan 5 slaapkamers)
Aantal badkamers
1 (en 1 apart toilet)

Tuin

Type
Voortuin
Oriëntering
Noorden
Staat
Goed onderhouden
Tuin 2 - Type
Achtertuin
Tuin 2 - Hoofdtuin
Ja
Tuin 2 - Oriëntering
Zuiden
Tuin 2 - Heeft een achterom
Ja
Tuin 2 - Staat
Goed onderhouden

Energieverbruik

Energielabel
A

CV ketel

Bouwjaar
2024
Eigendom
Eigendom

Uitrusting

Aantal parkeerplaatsen
2
Warm water
CV-ketel
Verwarmingssysteem
Centrale verwarming
Ventilatie methode
Mechanische ventilatie
Keukenvoorzieningen
Inbouwapparatuur
Badkamervoorzieningen
Douche
Toilet
Wastafel
Parkeergelegenheid
Inpandige garage
Glasvezelaansluiting aanwezig
Ja
Tuin aanwezig
Ja
Heeft een garage
Ja
Heeft rolluiken
Ja
Heeft zonwering
Ja
Heeft ventilatie
Ja

Kadastrale gegevens

Kadastrale aanduiding
Barendrecht A 4871
Perceeloppervlakte
352 m²
Omvang
Geheel perceel
Eigendomsituatie
Eigen grond